|
|
|
![]() |
|
|
The Structure |
|
|
 |
|
|
|
The structure
of the main office building consists of an exposed precast concrete frame (beams
and floor shells) with elements that were filled with in-situ concrete to form a
composite construction. This unique combination of precast and in-situ concrete
meant that the structure could be constructed as a braced frame without the need
for bracing walls in the cores. The lift cores are supported on a slender
structural steel frame that takes all its lateral stability from the main
concrete structure. The three levels of the lift motor rooms have fully welded
steel frame to provide adequate support. |
 |
|
|
|
Precast Concrete Loss Form For Slabs |
|
|
 |
|
 |
|
|
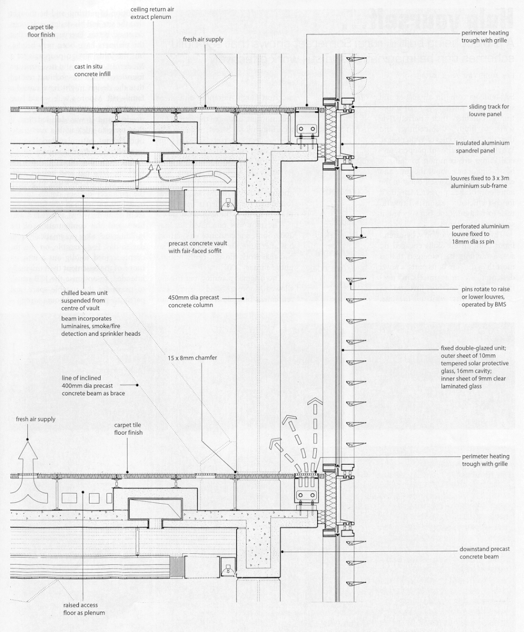
The structure
of the 12-storey office building comprises precast concrete beams and floor
shells filled with in-situ concrete. The soffits of the floors take the form of
a series of vaults spanning between concrete ribs at 3m centers. The ribs, in
turn, span between the spine beam and the perimeter columns. The vaults are
exposed to allow the thermal mass of the concrete to contribute to environmental
control at peak times. |
|
 |
|
 |
|
 |
|
|
Contact of
Contractor |
|
|
|
Sir Robert
McAlpine Ltd.
Eaton Court,
Maylands Ave,
Hemel Hempstead,
Hertfordshire,
HP2 7TR
Tel: 01442 233444
Fax: 01442 230024
Website:
www.sir-robert-mcalpine.com |
|
|
 |
|
|
|
Sources |
|
-
Powell K.,
New London Architecture,
Merrell
Publisher Ltd., London, 2001. |
-
Powell K.,
Richard Rogers Complete Works,
Volume two, Phaidon Press, London, 2001. |
-
The
Architects’ Journal, 10 January 2002,
pp26-43. |
|
www.ajspecification.com |
|
www.skyscrapers.com |
|
www.richardrogers.co.uk |
|
www.anthonyhuntassociates.co.uk |
|
www.sir-robert-mcalpine.com |
|
www.arup.com |
 |
|